Glaze
« Je tourne, tu modèles, nous glazons. »
Glaze
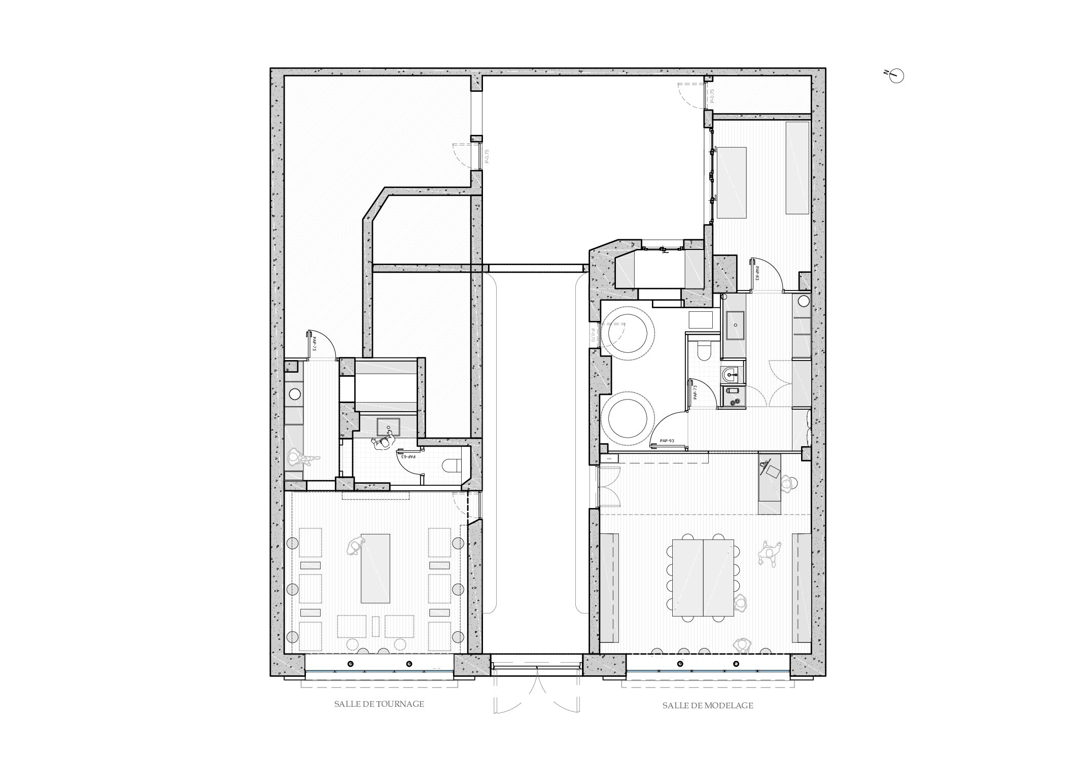
Tout est parti du mot glaz, en breton, qui désigne à la fois un bleu-vert et un éclat. Il évoque les nuances profondes et brillantes de la mer, mais aussi, par extension, cette couche vitreuse et lumineuse qu’est l’émail appliqué sur la céramique. Ce double sens – couleur et matière – est devenu le fil conducteur du projet. Nous avons développé le programme de Stéphanie autour de deux locaux commerciaux en vis-à-vis, transformés en ateliers de céramiste : l’un dédié au tournage, l’autre au modelage. Deux lieux distincts, mais pensés comme un ensemble cohérent, dialoguant à travers la rue et partageant une même identité. Deux nuances de bleu, soigneusement choisies, viennent habiller les panneaux qui structurent les espaces. Leur netteté contraste volontairement avec les revêtements bruts et historiques des lieux, révélés par la démolition, assumés et mis en valeur. Sur rue, chaque atelier s’offre en vitrine, tandis que les espaces de service et les zones plus techniques – sanitaires, vestiaires, four, salle d’émaillage – se développent en arrière-plan, dissimulés derrière ces panneaux bleus. Comme le veut la tradition, le bois de hêtre, dur et stable, au grain fin et régulier, est utilisé généreusement pour les tables de travail, les planches et battes de tournage, les étagères de séchage, les plateaux de transport ou encore les planches d’enfournement. Ce bois blond, associé aux teintes de la terre – du gris au rose selon son degré de séchage – trouve un écrin dans la profondeur des fonds bleus. Ces nuances et ces matières se prolongent jusque sur les façades, identifiables tout en restant volontairement sobres. Une retenue assumée, afin de laisser toute la place aux gestes, aux usages et aux productions des élèves, véritables protagonistes du lieu.
Crédit photo : Aurélie Deglane, @liliiwonderland
Conception et réalisation avec Alice Rousseau







